请在线提交您的咨询,我们将尽快联系您!
人体内70%都是水,饮水水质的好坏对人的健康有很大的影响。越来越多的家庭选择使用净水器来过滤自来水,过滤掉了水中的铁锈、泥沙、重金属、细菌以及对人体有害的物质,改善水质,保障身体更加健康和安全。
美国著名水专家、营养学家马丁.福克斯博士(Martin FOX ph.D.)经过15年的研究,在他写的《将康的水》中指出:“整个身体负担的挥发性化学物质(比如余氯)大致可以分为1/3经过口腔摄入,2/3在洗涤或洗浴时通过皮肤和呼吸道摄入”
a、 可以去除水中氯元素、重金属、固体悬浮颗粒等;
b、 具有杀菌功能;
c、 通过活性炭去除各种有机物等,可直接饮用;
d、 系统具有自动维护功能。
a、 通过天然树脂置换出水中的钙、镁离子等,降低水的硬度;
b、 减少水中矿物质对衣物和皮肤的磨损;
c、 避免管道、阀门、卫浴设备和家用电器中水垢产生,延长使用寿命;d、 避免水中矿物质在洁具、餐具等形成黄斑。
a、 采用反渗透法,经过精密计算匹配的五道过滤;
b、 处理后的水成为纯净水,水质达国家瓶装水标准。
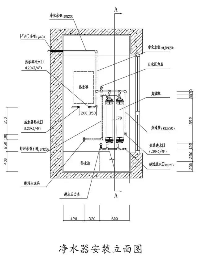
确定总水管先走到设备墙,中央净水设备定位在这里
一般装修公司中央净水经验少,绝大部分水电师傅也没弄过中央净水,所以水电定位,一定别忘了叫上中央净水的师傅上门,一起现场定位交底。

给水电工师傅标出了水管接头和净水器实际安装位置。

【开工,给水管管路开槽】
④师傅专门从净水总管拉了一条4分管径的管路到右侧,共洗衣机用,洗衣服都是净化水呢!
周边的管路布好,水电验收完毕,开始封槽

设备安装

安装调试完毕

设备墙净水器、热水器、回水器都集中在一起

外面的封盖防腐木柜门一装,完工。

400-820-8810/1376435288924小时咨询热线
菱格总公司上海市闵行区莘庄镇梅沪闵路6333-1号 天荟云洲 T18楼 8F